Benedetti al 100

Ver mapa

Departamento en Venta, Floresta

U$D 165.000

+ $ 400.000 expensas

Sup. total: 130 m²
Sup. total:
130 m²
Dormitorio/s: 3
Dormitorio/s:
3
Antigüedad: 50 años
Antigüedad:
50 años
Baño/s: 3
Baño/s:
3
Disposición: Al frente
Disposición:
Al frente
Sup. cubierta: 110 m²
Sup. cubierta:
110 m²

Descripción

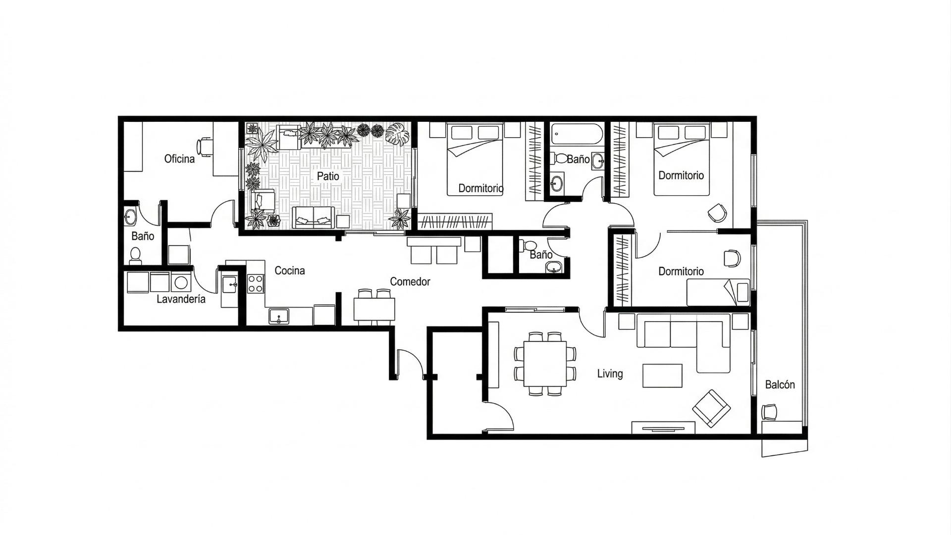
Departamento 4 Amb + Dep 130 m2 Balcón Patio Floresta

Impecable Departamento de categoría en edificio de 50 años de antigüedad, tres unidades por piso. Pallier privado y entrada de servicio.
Cuatro ambientes mas Dependencia/Oficina disposición frente, orientación oeste, muy luminoso en todos los ambientes. Superficie Total: 130m2 (cubierta 110m2, balcón corrido al frente y patio). Calefacción por loza radiante.
Amplio Living- comedor de 29m2 ( 8.00m x 3.60m), pisos de parquet en óptimo estado, salida a balcón . Cocina comedor independiente con alacenas y bajo mesada de madera, salida al patio de 15m2, lavadero independiente.
Baño completo y un toilette. Tres Dormitorios luminosos con placards: Primer Dormitorio al frente, superficie 4.00m x 3.00m, Segundo Dormitorio superficie 3.50m x 2.10 m reformado, actualmente utilizado como vestidor con ventana al balcón. Tercer Dormitorio con placard, superficie: 3.60m x 3.00m. Amplia dependencia con ventana al patio Sup: 8m2 con placard y tercer baño.
Baulera en la terraza.
Inmejorable ubicación en Floresta a 30 metros de la Plaza Ramón Falcón y metros de Av. Rivadavia con todos los medio de transporte a diez cuadras del subte A Estación terminal San Pedrito.
Apto Crédito
Ver Recorrido 360


Todas las medidas enunciadas son meramente orientativas, las medidas exactas serán las que se expresen en el respectivo título de propiedad del inmueble.
Corredor interviniente: Corredor interviniente: Clayton Pearse CUCICBA 7987 - Pablo Lipina CUCICBA 7680. Matricula Provincia de Buenos Aires, a cargo de Clayton Pearse Mat. 4218 CPMCLZ. En cumplimiento de las leyes provinciales vigentes que regulan el corretaje inmobiliario, Ley Nacional 25.028, Ley 24.240 de Defensa al Consumidor, las normas del Código Civil y Comercial de la Nación, Constitución Nacional y Provinciales, todas las operaciones inmobiliarias son objeto de intermediación y conclusión por los corredores debidamente colegiados indicados más arriba.

Ubicación

Benedetti al 100

Estado de la propiedad: Muy Bueno

Apto prof.: No

Apto crédito:

Acepta mascotas:

  • Gas

  • Balcón
  • Patio

Superficie total: 130 m²

Superficie cubierta: 110 m²

Disposición: Al frente

Orientación: Oeste

Agua caliente: Termotanque

Calefacción: Piso radiante central

Tipo de edificio: Entre Medianeras

Categoría del edificio: Excelente

Dptos/piso: 3

Ascensores principales: 1

Ascensores de servicio: 1

Código aviso: 1931

Contáctanos

* Campos obligatorios
Al enviar estás aceptando los Términos y Condiciones.

PRIZMA BROKERS S.R.L. Corredor interviniente: Clayton Pearse CUCICBA 7987 / 4218 CPMCLZ y Pablo Lipina CUCICBA 7680. Todas las medidas enunciadas son meramente orientativas, las medidas exactas serán las que se expresen en el respectivo título de propiedad del inmueble.